Dual-View High-Energy Cargo Scanner

XRC 150-165DV (200kV)

PALLET AND CARGO

The XRC 150-165DV (200kV) is a dual-view X-ray scanner featuring two generator sources for simultaneous horizontal and vertical imaging. This advanced system delivers outstanding performance with its potent 200kV generator and dual-view (DV) technology, enabling high-resolution imaging in both planes without requiring package repositioning. The system is ideal for high-security facilities requiring thorough and efficient cargo screening.

Technical & Functional

Key Features

XRC 150-165DV (200kV)

Tunnel Size

1,540 mm × 1,660 mm

Anode Voltage

200 kV (operating at 200 kV)

Steel Penetration

50 mm guaranteed; 52 mm typical

Wire Resolution

36 AWG guaranteed; 38 AWG typical

Conveyor Load Capacity

3,000 kg evenly distributed

Conveyor Height

385 mm

Beam Direction

1st Generator - Vertically downward; 2nd Generator - Horizontally sideward

Dual-View Technology

Two-generator sources for simultaneous imaging

Multi-diode Structure

Organic/Inorganic/Mixed material differentiation

Multi Language Interface

Supports multiple language options for international deployments.

High Energy Dual View Cargo Screening System

The XRC 150-165DV 200kV system shown in full exterior configuration, featuring a large tunnel opening of 1540 mm x 1660 mm, dual generator housing, and heavy duty conveyor with 3000 kg load capacity, designed for palletized freight and oversized cargo inspection.

Horizontal and Vertical Imaging in One Scan

Example X ray image generated by two 200kV sources, providing dual view imaging in a single scan. The multi diode structure enables clear differentiation of organic, inorganic, and mixed materials, supporting detection of concealed threats within dense cargo.

Integrated Cargo Screening Workstation

The XRC 150-165DV configured with external operator console and dual monitors, supporting advanced image processing functions such as zoom, edge enhancement, atomic number display, and threat image projection for high security cargo environments.

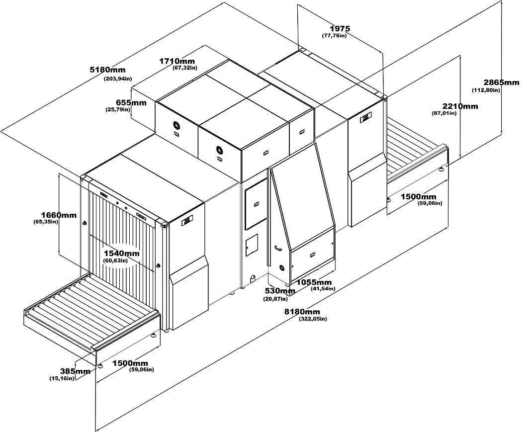
Installation Layout and System Dimensions

Technical drawing illustrating the overall footprint of 8180 mm length, 2865 mm width, and 2505 mm height, with conveyor height of 385 mm and tunnel size of 1540 mm x 1660 mm, supporting fixed installation in cargo terminals and logistics hubs.

Benefits & Applications

Client Benefits

  • Dual-View Imaging: Two-generator sources provide simultaneous horizontal and vertical imaging
  • Efficiency: Single scan eliminates need for package repositioning
  • Threat Detection: Superior effectiveness in detecting concealed objects, cutting tools, explosives, and narcotics
  • Image Quality: Multi-diode structure provides unique color-coded imaging
  • Error Reduction: Significantly reduces screening error rates
  • High Penetration: 200kV generator provides superior penetration for dense cargo

Use Cases

  • Freight companies
  • Cargo terminals
  • Airports
  • Customs facilities
  • General cargo screening
  • Distribution centers
  • Logistics hubs
  • High-security facilities

Integration & Compatibility

  • Operating System: Linux
  • Processor: Intel Core i5 (or superior)
  • Memory: 4 GB RAM (or superior)
  • Video Card: 2 GB (or superior)
  • Hard Drive: 1 TB (or superior)
  • USB Ports: 6 ports (or superior)
  • Monitor: 21.5" Flat (or superior)
  • Power Supply: 110/220V AC ± 10%, 50/60 Hz, 10A max
  • Optional Integration: Barcode reader, external camera archiving, remote viewing station, network supervisory system

Deployment Options

  • Stationary Installation: Fixed location in cargo screening facilities
  • Modular Design: Can be relocated if needed
  • Optional Accessories: Operator console, external UPS, search table, tray return system, inclined conveyor

Technical Specifications

  • Tunnel Size: 1,540 mm × 1,660 mm
  • Dimensions:  8,180 mm × 2,865 mm × 2,505 mm
  • Weight (Unpacked):  ~6,100 kg
  • Conveyor Height:  385 mm
  • Conveyor Load Capacity:  3,000 kg
  • System Power: 110/220V AC ± 10%, 50/60 Hz, 10A max
  • Conveyor Speed:  0.20 m/sec (forward/reverse)
  • Steel Penetration: 50 mm guaranteed; 52 mm typical
  • Wire Resolution: 36 AWG guaranteed; 38 AWG typical
  • Anode Voltage: 200 kV (operating at 200 kV)
  • Tube Current: 1.2 mA
  • Beam Direction: 1st: Vertically downward; 2nd: Horizontally sideward
  • Article Separation: Low Z, Medium Z, High Z to 0.5 Z accuracy
  • Cooling System : Oil and forced air cooling
  • Processor: Intel Core i5 (or superior)
  • Monitor: 21.5" Flat (or superior)
  • Memory: 4 GB RAM (or superior)
  • Video Card: 2 GB (or superior)
  • Hard Drive: 1 TB (or superior)
  • Operating System:  Linux

XRC 150-165DV (320kV)

Product Family

With its 320kV generator XRC 150-165DV x-ray baggage scanner provides superior performance and facilitates the operators use thanks to the various image processing functions, hazard alarm, advanced computer technology and the best in class software. It provides exceptional ease in detecting threats such as cutting tools, explosives narcotics and minimizes the error rate. Thanks to its multi-diode structure and quality in imaging of scanned objects /materials), image is colored based on density and shows organic, inorganic and mixed materials in different tones.

It is manufactured with dual view (DV) technology. Thanks to its 2 generator sources, it provides high resolution and detailed imaging in horizontal and vertical angles. The images can be accessed with a single scan without the need to re-place the packages in a different orientation. Thus, hidden objects in the luggage are detected more easily and quickly. Designed with the latest technology to scan medium and large packages on a pallet. XRC 150-165DV (320kV) is one of the most suitable solutions for use in high security facilities such as freight companies, terminals, airports, customs and general cargo.

Key features of  XRC 150-165DV (320kV) :
 

  • Programmable function keys parcel counter
  • Date and time display
  • Virtual threat image projection (TIP) 
  • Organic inorganic threat alarm operator
  • Training program (OTP)
  • UPS (for computer supply)
  • Multi languages
  • Self diagnosis
  • Generator timer automatic stop conveyor
Contact unival group

MAIN FUNCTIONS OF

IMAGE POST-PROCESSING

High Penetration (HP)

Perfect View (Detail Enhancement) (PV)

Edge

Pseudo Color (PS)

Organic Materials (OM)

Inorganic Materials (IM)

Black & White View (B/W)

Inverted colours (IN)

PREVIOUS
NEXT

OPTIONAL ACCESSORIES

OPEN-CLOSED OPERATOR CONSOLE

ADJUSTABLE OPERATOR CONSOLE

I-STAND OPERATOR CONSOLE

21,5‘’- 27’’ FLAT MONITOR

INPUT / OUTPUT ROLLERS

INCLINED CONVEYOR

TRAY RETURN SYSTEM (MOTORIZED/GRAVITY)

SEARCH TABLE

TEST KIT (STP/ASTM)

PREVIOUS
NEXT

Need help or want to learn more?

We are happy to assist you! Feel free to get in touch with us, our team will respond as quickly as possible.

Explore products with the AI Agent, or get in touch with our team.
unival customer service team