XRC 150-165DV (200kV)

PALLET AND CARGO

XRC 150-165DV x-ray baggage scanner facilitates the operators use thanks to the various image processing functions, hazard alarm, advanced computer technology and the best in class software with its 200kV generator source. It makes it extraordinarily easy to detect threats such as cutting tools, explosive narcotics and reduces the rate of error. It provides unique image quality by showing the scanned organic, inorganic and mixed items in different colors thanks to its multi-diode structure and quality in imaging of scanned objects. It is manufactured with dual view (DV) technology. Thanks to its 2 generator sources, it provides high resolution and detailed imaging in horizontal and vertical angles. The visuals can be accessed with a single scan without the need to re-place the packages in a different orientation. Thus, hidden objects in the luggage are detected more easily and quickly.
 

It is designed with the latest technology to scan medium and large packages on a pallet. XRC 150-165DV is one of the most suitable solutions for use in high security facilities such as freight companies, terminals, airports, customs and general cargo.

Downloads

XRC 150-165DV (english)

0.47MB

XRC 150-165DV (german)

0.47MB

XRC 150-165DV

APPLICATION AREAS

POLICE AND JUSTICE

AIRPORTS AND BORDER CROSSINGS

GOVERNMENT BUILDING

DISTRIBUTION CENTERS LOGISTICS HUBS

CUSTOMS BORDER CONTROL

CRITICAL INFRASTRUCTURE

FEATURES & SPECIFICATIONS

XRC 150-165DV
  • PROGRAMMABLE FUNCTION KEYS PARCEL COUNTER
  • DATE AND TIME DISPLAY
  • VIRTUAL THREAT IMAGE PROJECTION (TIP)
  • ORGANIC/INORGANIC THREAT ALARM OPERATOR
  • TRAINING PROGRAM (OTP)
  • UPS (FOR COMPUTER SUPPLY)
  • MULTI LANGUAGES
  • SELF DIAGNOSIS
  • GENERATOR TIMER AUTOMATIC STOP CONVEYOR
XRC 150-165DV
  • BARCODE READER SYSTEM
  • EXTERNAL CAMERA ARCHIVING
  • REMOTE VIEWING STATION
  • RECHECK STATION
  • NETWORK SUPERVISORY SYSTEM (NSS)
  • REMOTE ACCESS CONNECTION
  • SMART CARD LOGIN
XRC 150-165DV
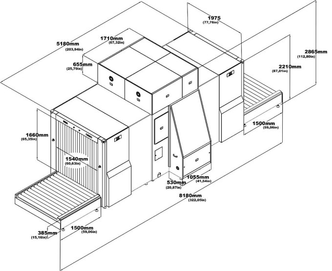
  • TUNNEL SIZE: 1,540 mm x 1,660 mm
  • DIMENSIONS: 8,180 mm x 2,865 mm x 2,505 mm
  • APPROX. WEIGHT UNPACKED: ~6,100 kg
  • CONVEYOR HEIGHT: 385 mm
  • CONVEYOR LOAD CAPACITY: 3,000 kg Evenly Distributed
  • SYSTEM POWER: 110/220V AC ± 10% 50/60 Hz, 10amp max.
  • CONVEYOR SPEED: 0.20 m/sec. Forward or Reverse
  • STEEL PENETRATION: 50 mm guaranteed; 52 mm typical
  • WIRE RESOLUTION: 36 AWG guaranteed; 38 AWG typical
  • ANODE VOLTAGE: 200 kV, operating at 200 kV
  • TUBE CURRENT: 1.2 mA
  • BEAM DIRECTION: 1st Generator: Vertically downward | 2nd Generator: Horizontally sideward
  • ARTICLE SEPARATION: Low Z, Medium Z, High Z to 0.5 Z Accuracy
  • COOLING: Oil and forced air cooling
XRC 150-165DV
  • PROCESSOR: Intel® Core™ i5 (or superior)
  • MONITOR: 21.5” Flat (or superior)
  • MEMORY: 4 GB RAM (or superior)
  • VIDEO CARD: 2 GB (or superior)
  • HARD DRIVE: 1 TB (or superior)
  • USB PORT: 6 port (or superior)
  • OPERATING SYSTEM: Linux

MAIN FUNCTIONS OF

IMAGE POST-PROCESSING

High Penetration (HP)

Perfect View (Detail Enhancement) (PV)

Edge

Pseudo Color (PS)

Organic Materials (OM)

Inorganic Materials (IM)

Black & White View (B/W)

Inverted colours (IN)

PREVIOUS
NEXT

OPTIONAL ACCESSORIES

OPEN-CLOSED OPERATOR CONSOLE

ADJUSTABLE OPERATOR CONSOLE

I-STAND OPERATOR CONSOLE

21,5‘’- 27’’ FLAT MONITOR

INPUT / OUTPUT ROLLERS

INCLINED CONVEYOR

TRAY RETURN SYSTEM (MOTORIZED/GRAVITY)

SEARCH TABLE

TEST KIT (STP/ASTM)